Powrót

Działka zabudowana 5 kondygnacyjnym budynkiem położona w Szczecinie przy ulicy Komuny Paryskiej 2,3 (dz.25/57 z obr.3100)

Północ, Niebuszewo
Cena: 5 000 000zł Cena wywoławcza do przetargu
JESTEŚ ZAINTERESOWANY OFERTĄ?
Skontaktuj się z nami telefonicznie
lub poprzez formularz.

Wanda Lisewska
Kontakt: 91 424 57 75
E-mail: wlisew@um.szczecin.pl


DZIĘKUJEMY ZA WIADOMOŚĆ

Dziękujemy za wiadomość

Szczegóły

ID oferty: 21685 Typ umowy: Sprzedaż Nr ewidencyjny działki: 25/57 Nr obrębu: 3100 Nr księgi wieczystej: SZ1S/00265289/6 Status: W przygotowaniu
Dzielnica: Północ Osiedle: Niebuszewo Nazwa ulicy: Komuny Paryskiej Nr budynku: 2,3 Nr lokalu: --- Piętro: ---
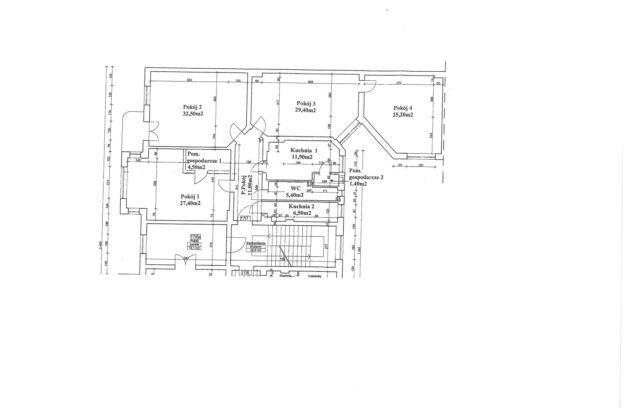
Rodzaj działki: Zabudowana Powierzchnia (m2): 2121m2 Ilość pomieszczeń: --- Przeznaczenie: Komercyjne, Wielorodzinne
Dodatkowe
---

Opis

Nieruchomość objęta jest Miejscowym planem zagospodarowania przestrzennego „Niebuszewo – osiedle” w Szczecinie uchwalonym w dniu 30 stycznia 2024r. Uchwałą Rady Miasta Szczecin Nr LVI/1583/24 i znajduje się w granicach terenu elementarnego oznaczonego na załączniku graficznym planu symbolem P.N.2061.U,MW z przeznaczeniem terenu: usługi. Dopuszcza się zabudowę mieszkaniową wielorodzinną.

PREZYDENT MIASTA SZCZECIN ogłosił  PRZETARG USTNY NIEOGRANICZONY na sprzedaż nieruchomości.

PRZETARG odbędzie się w dniu 30.10.2025 r. o godz. 1000 w siedzibie Urzędu Miasta Szczecin, pl. Armii Krajowej 1, w sali obrad Rady Miasta Szczecin (lewe skrzydło, sala numer 173).

Nieruchomość w Systemie Informacji Przestrzennej Miasta Szczecin

Miejscowy plan zagospodarowania przestrzennego ogólny
Miejscowy plan zagospodarowania przestrzennego szczegółowy
Ogłoszenie o przetargu



Autor: Beata Ledzińska
Data ostatniej aktualizacji: 22.8.2025 godz.13:34