Lokal mieszkalny – Ku Słońcu 23/12
Zachód, ŚwierczewoSkontaktuj się z nami telefonicznie
lub poprzez formularz.
Jaromira Konopka-Bomba
Kontakt: 91 424 54 33
E-mail: jkonopka@um.szczecin.pl
DZIĘKUJEMY ZA WIADOMOŚĆ
Szczegóły
Termin wniesienia wadium upływa dnia 13.02.2026 r. Przetarg odbędzie się 23.02.2026 r. Lokal udostępniony do lustracji do 23.02.2026 r. e-mail: sekretariat-dte@zbilk.szczecin.pl
Opis
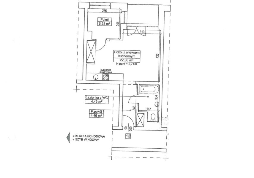
Lokal składa się z 1 pokoju z aneksem kuchennym, 1 łazienki z WC, 1 przedpokoju. Usytuowanie w budynku z 2008 r. , ze ścianami z bloczków z betonu komórkowego ocieplonego styropianem, 5-kondygnacyjnym, w pełni podpiwniczonym, z windą. W lokalu ogrzewanie c.o. i ciepła woda z sieci miejskiej, instalacje wodno-kanalizacyjne i elektryczne. Lokal wyposażony w zabudowę kuchenną i 2 szafy. Lokal suchy, funkcjonalny, z balkonem, podłogi w dobrym stanie technicznym. Lokalizacja w dzielnicy Zachód, osiedle Świerczewo. Spokojne sąsiedztwo, zabudowa mieszkaniowa wielorodzinna, ogrody działkowe, usługi, dostęp do komunikacji miejskiej, w niedalekiej odległości teren Cmentarza Centralnego.
Autor: Jaromira Konopka-Bomba
Data ostatniej aktualizacji: 21.1.2026 godz.11:07









