Lokal mieszkalny – ul. Pocztowa 10/11.
Śródmieście, TurzynSkontaktuj się z nami telefonicznie
lub poprzez formularz.
Jaromira Konopka-Bomba
Kontakt: 91 424 54 33
E-mail: jkonopka@um.szczecin.pl
DZIĘKUJEMY ZA WIADOMOŚĆ
Szczegóły
Termin wniesienia wadium upływa dnia 20.03.2026 r. Przetarg odbędzie się 30.03.2026 r. Lokal udostępniony do lustracji do 30.03.2026 r. - administrator rejonu tel. 91 430 91 16.
Opis
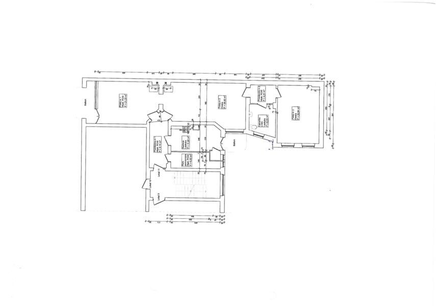
Lokal składa się z 3 pokoi, 1 kuchni, 1 łazienki z WC, 2 przedpokoi, 1 pomieszczenia pomocniczego. Wysokość pomieszczeń 3,5 m. usytuowanie w budynku frontowym. Do remontu. Ogrzewanie piecami kaflowymi, instalacje: wodno-kanalizacyjna, gazowa, elektryczna, wentylacja grawitacyjna. Budynek murowany z cegły ceramicznej pełnej, podpiwniczony, 5 kondygnacji. Lokalizacja w kwartale o zwartej zabudowie śródmiejskiej, mieszkaniowej wielorodzinnej i mieszkaniowo-usługowej (oświata, ochrona zdrowia, handel, prawno-finansowe), średnie natężenie ruchu ulicznego. Położenie w dzielnicy Śródmieście, osiedle Turzyn.
Autor: Jaromira Konopka-Bomba
Data ostatniej aktualizacji: 29.1.2026 godz.10:16













