Lokal mieszkalny – ul. Kaszubska 65/6.
Śródmieście, CentrumSkontaktuj się z nami telefonicznie
lub poprzez formularz.
Jaromira Konopka-Bomba
Kontakt: 91 424 54 33
E-mail: jkonopka@um.szczecin.pl
DZIĘKUJEMY ZA WIADOMOŚĆ
Szczegóły
Przetarg odbędzie się w dniu 03.06.2026 r. o godz. 10:30. Termin wniesienia wadium upływa dnia 26.05.2026 r. Oględziny lokalu po uzgodnieniu tel. 91 430 91 18.
Opis
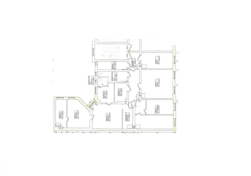
Lokal składa się z 6 pokoi, 2 kuchni, 2 łazienek z WC, 1 schowka, 2 przedpokoi. Wysokość pomieszczeń 3, 55 m. Usytuowanie wschodnio-zachodnie . Instalacje grawitacyjna, wodno-kanalizacyjna, elektryczna, gazowa, ogrzewanie piecami kaflowymi. lokal do remontu. Budynek z cegły pełnej, podpiwniczony, schody drewniane. Lokalizacja w ścisłym centrum miasta, w zabudowie kamienicznej. W okolicy sieć handlowa, restauracyjna, usługi finansowe i prawnicze, medyczne, szkolnictwo wyższe oraz rzemiosło. W pobliżu park śródmiejski.
Miejscowy plan
zagospodarowania przestrzennego ogólny
Miejscowy plan
zagospodarowania przestrzennego szczegółowy
Ogłoszenie o przetargu
Autor: Jaromira Konopka-Bomba
Data ostatniej aktualizacji: 1.4.2026 godz.10:28













