Nieruchomość pod usługi położona przy ul. Walecznych 23 w Szczecinie
Prawobrzeże, ZdrojeSkontaktuj się z nami telefonicznie
lub poprzez formularz.
Małgorzata Angrot-Glińska
Kontakt: 91 424 54 20
E-mail: mglinska@um.szczecin.pl
DZIĘKUJEMY ZA WIADOMOŚĆ
Szczegóły
---
Opis
Działka nr 107/4, obr. 4162 położona jest w obrębie obiektu zabytkowego, wpisanego do rejestru zabytków województwa zachodniopomorskiego jako zespół budynków Domu Dziecka nr 2 im. Adama Mickiewicza (dawnego domu sierot) wraz z otaczającym go parkiem przy ul. Walecznych w Szczecinie, pod nr A-907, decyzją: KL.3-5340/28/88 z dn. 20.12.1988r. oraz zawiadomieniem z dn. 20.07.2011r., znak DZ-5130.111.2011.IW i podlega ścisłej ochronie konserwatorskiej.
Z tytułu wpisania nieruchomości do rejestru zabytków, zgodnie z art. 68 ust. 3 ustawy z dnia 21 sierpnia 1997 r. o gospodarce nieruchomościami na wniosek osoby ustalonej w przetargu jako nabywca złożony do protokołu z przetargu, od osiągniętej w przetargu ceny za część nieruchomości wpisanej do rejestru zabytków zostanie udzielona bonifikata w wysokości 50%.
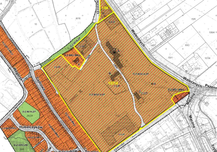
Nieruchomość położona jest w obszarze dla którego obowiązuje Miejscowy plan zagospodarowania przestrzennego terenu „Zdroje – Zielony Dwór” uchwalony Uchwałą Nr IV/65/24 Rady Miasta Szczecin z dnia 1 września 2024 r. w terenie elementarnym oznaczonym symbolem D.Z.8002.U,ZP o następujących ustaleniach funkcjonalnych:
1) zabudowa usługowa i zieleń urządzona o charakterze parkowym;
2) dopuszcza się usługi w zakresie: ochrony zdrowia, opieki społecznej, nauki i edukacji, kultury i rozrywki, turystyki, sportu i rekreacji, gastronomii;
3) zakaz lokalizacji funkcji mieszkaniowej.
W dniach od 02.03.2026 r. do 23.03.2026 r. wywiesza się do publicznej wiadomości na okres 21 dni Wykaz Nr 28/2026/WZION/GMS/N Prezydenta Miasta Szczecin w sprawie sprzedaży nieruchomości w trybie przetargu ustnego nieograniczonego.
Nieruchomość w Systemie Informacji Przestrzennej Miasta Szczecin
Miejscowy plan
zagospodarowania przestrzennego ogólny
Miejscowy plan
zagospodarowania przestrzennego szczegółowy
Wykaz
Autor: Beata Ledzińska
Data ostatniej aktualizacji: 2.3.2026 godz.13:46





















